Magentazorg Rehabilitation Centre

Stimulating independent movement, Oudorp

Supporting the best possible personalized care

The recovery process is key in the new rehabilitation centre. That is why the building provides maximum support to staff in providing the best possible personalized care.

1 / 14

2 / 14

3 / 14

4 / 14

5 / 14

6 / 14

7 / 14

8 / 14

9 / 14

10 / 14

11 / 14

12 / 14

13 / 14

14 / 14

X

The mission of Magentazorg forms the basis for the new building: offering recovering patients a pleasant care environment that reflects our time. In a building that stimulates movement – both inside and outside – for speedier recovery. But also to enable care professionals to carry out their work more pleasantly and efficiently in a healthy environment.

 

Walking a little further every time

The compact building encourages patients to move around on their own. They do that in highly visible, centrally positioned exercise spaces, in the treatment centre and in the subtly tapered corridors terminated by a large window that offers a view of the green exercise garden. In this way, patients are stimulated consciously and unconsciously to exercise. The floors in the sensory-friendly corridors are marked with distance lines so that patients can challenge themselves gradually and playfully to walk a little further on every occasion. If they manage the longest corridor, it is an indication that they are possibly ready to return home.

 

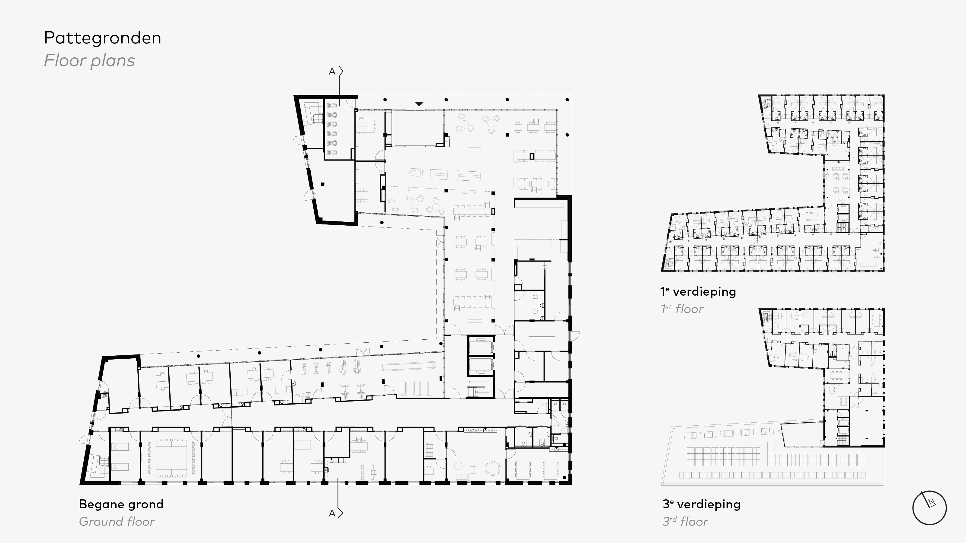
Ground floor as inspiring meeting point

The U-shaped building has four floors. Located on the ground floor behind the entrance are the intake area, the public restaurant with children’s corner, and the hairdressing salon. This is a convivial space where patients can meet one another and family members, or simply read a newspaper. Further away are the activity area and the central treatment centre with occupational therapy, physiotherapy and speech therapy. All in all, a lively setting where patients, local residents and clients encounter one another naturally.

 

“It works very nicely in the building. But we also find that it helps us attract new colleagues. That is crucial in healthcare today

Gerrit Jan Vos, chairman of the board Magentazorg

 

Motivation from watching others recover

After entering the building, you have a direct view into the central exercise hall with fitness equipment, without compromising the privacy of the people who are exercising there. In that way, clients inspire and stimulate one another to work on their health. From this hall, patients can access the courtyard and the neighbouring exercise garden, thereby encouraging variation and challenges in exercise. The centre is surrounded by trees and, when the planned courtyard garden is ready, will offer a lot of privacy outdoors. The green courtyard is an integral part of the active rehabilitation process.

 

Care professionals show the new rehabilitation centre

 

More control improves wellbeing

Recovering patients stay on the first and second floors, each in a one-person studio with private bathroom. Located on each floor is a shared living room with kitchen and also a central exercise space. Here they can practice everyday activities with the help of a big video screen as part of their course of rehabilitation. More personal attention is offered in the individual rooms, which can be recognized from the corridor by the colour gradient in the recesses. That makes everybody’s own ‘house’ easy to find.

 

Rehabilitation care continues during construction work

The new building is designed in such a way that the neighbouring building could remain in use during construction. Demolition could begin after the relocation, and a start was made on the landscaping of the exercise garden. In terms of scale, form, siting and choice of materials, the new building is carefully integrated into the neighbourhood and existing green surroundings. An interesting detail is that even the bats were temporarily housed elsewhere during construction and then returned. Overall, it was a challenging puzzle, completed in close consultation with landscape architect RRog and Magentazorg.


Photography (c): Scagliola + Brakkee | Richard Rood
Video (c): Magentazorg

An unknown error occured. Please contact the administrator to resolve this issue.